
Beschrijving
Deze commerciële gelijkvloerse verdieping met mezzanine is gelegen op het levendige Eilandje in Antwerpen, pal naast de populaire foodcourt "De Wolf." Dit bruisende gebied, bekend om zijn trendy eet- en drinkgelegenheden, trekt veel passage aan en biedt een uitstekende locatie voor ondernemingen.
Vanuit het pand heeft U een prachtig zicht op het MAS.
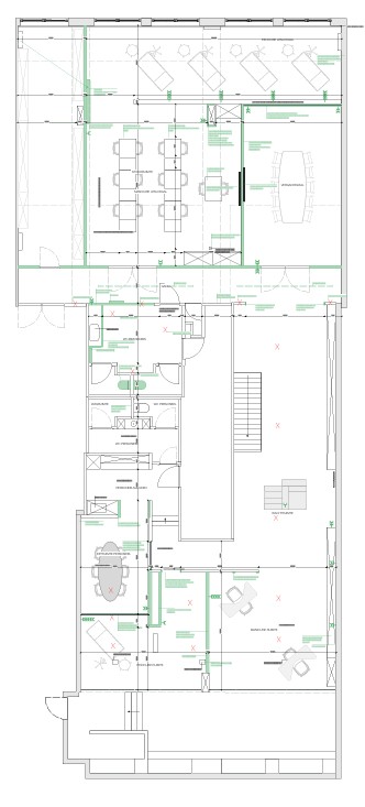
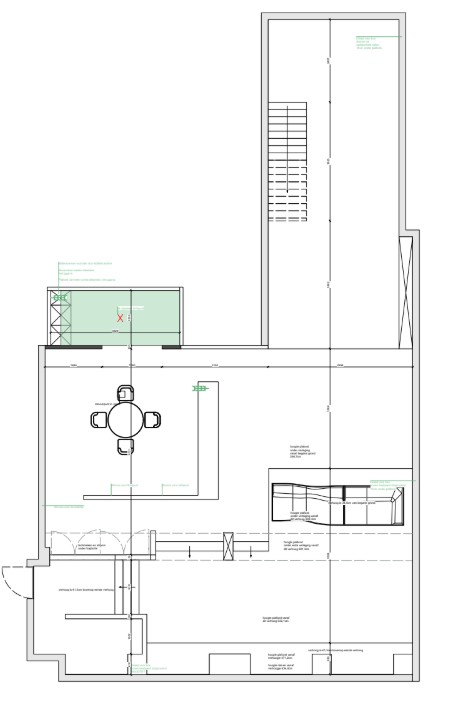
De ruimte is multifunctioneel ingericht en leent zich uitstekend voor diverse commerciële toepassingen, van retail tot kantoor.
Hoogwaardige afwerking, m.n. parket, stalen deuren, mezannine met afscheiding in glas, marmer .
De huidige inrichting én aanwezig meubilair blijft behouden.
Kortom, een toplocatie voor uw activiteit!
Inclusief de huurprijs zitten 4 ondergrondse autostaanplaatsen.
Vermelde huurprijs is excl. algemene lasten en onroerende voorheffing.
Als u geïnteresseerd bent in dit prachtige ruimte, aarzel dan niet om contact met ons op te nemen voor verdere informatie of om een bezoek ter plaatse in te plannen. Ons team van ervaren vastgoedspecialisten staat klaar om u te helpen bij het vinden van de perfecte ruimte voor uw bedrijf.
Vanuit het pand heeft U een prachtig zicht op het MAS.
De ruimte is multifunctioneel ingericht en leent zich uitstekend voor diverse commerciële toepassingen, van retail tot kantoor.
Hoogwaardige afwerking, m.n. parket, stalen deuren, mezannine met afscheiding in glas, marmer .
De huidige inrichting én aanwezig meubilair blijft behouden.
Kortom, een toplocatie voor uw activiteit!
Inclusief de huurprijs zitten 4 ondergrondse autostaanplaatsen.
Vermelde huurprijs is excl. algemene lasten en onroerende voorheffing.
Als u geïnteresseerd bent in dit prachtige ruimte, aarzel dan niet om contact met ons op te nemen voor verdere informatie of om een bezoek ter plaatse in te plannen. Ons team van ervaren vastgoedspecialisten staat klaar om u te helpen bij het vinden van de perfecte ruimte voor uw bedrijf.
Financieel en beschikbaarheid
- Nettoprijs
- € 7.500 p/m
- Beschikbaarheid
- Onmiddellijk
Specificaties
- Aansluiting riolering
- Ja
- Aansluiting gas
- Ja
- Aansluiting water
- Ja
- Handelsruimte
- 461 m²
- Bewoonbare opp.
- 461 m²
- Elektriciteit
- Ja
- Buitenbelichting
- Ja,
- Binnenparking
- 4
Attesten
- EPC
- 295 kWh/m²











Godefriduskaai 18
2000 Antwerpen
Interesse?
Contacteer onze makelaar in de buurt. Wij staan u bij van a-z en begeleiden u in de verdere opvolging van het dossier.

Vergelijkbare panden

Te huur

Te huur

Te huur


