
Beschrijving
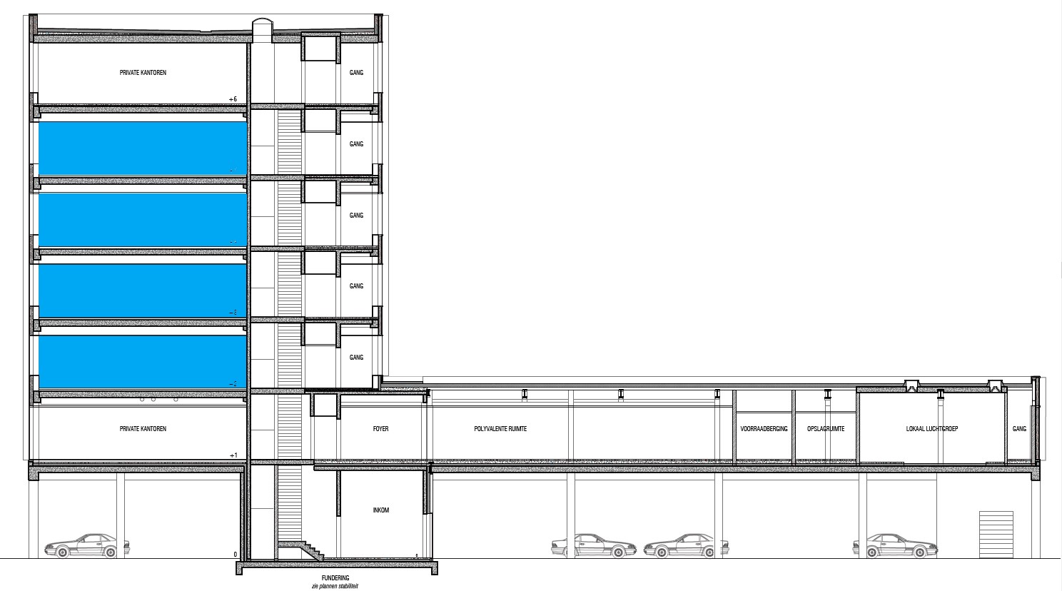
Dit state-of-the-art kantoorgebouw in Geel werd recent opgeleverd (2020). Het gebouw bestaat uit 6.500 m² kantoorruimte verdeeld over 6 bouwlagen en geniet een gunstige ligging vlakbij het op- en afrittencomplex van de E313 alsook het openbaar vervoer op wandelafstand.
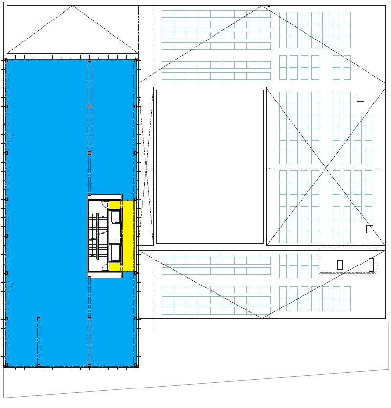
- Parkingratio 1/42 m²
- Overdekte parking wagens, moto's en fietsen
- Maximale daglichttoetreding
- Flexibele modulatie
- Duurzaam gebouw
Prijzen exclusief algemene kosten, onroerende voorheffing en BTW.
- Parkingratio 1/42 m²
- Overdekte parking wagens, moto's en fietsen
- Maximale daglichttoetreding
- Flexibele modulatie
- Duurzaam gebouw
Prijzen exclusief algemene kosten, onroerende voorheffing en BTW.
Financieel en beschikbaarheid
- Nettoprijs
- € 4.973 p/m
- Prijs per m² per jaar
- € 130
- Prijs parking binnen per jaar
- € 750
- Prijs parking buiten per jaar
- € 600
- Beschikbaarheid
- Onmiddellijk
- Huurlasten
- € 20 per maand
Specificaties
- Omgeving openbaar vervoer
- Ja
- Omgeving autosnelweg
- Ja
- Lift
- Ja
- Air conditioning
- Ja
- Bewoonbare opp.
- 459 m²
- Kantoren
- 459 m²
- Bouwjaar
- 2019
- Verdieping
- 4
- Verdieping(en)
- 6
- Fietsstalling
- Ja
- Vrij hoogte
- 2,8 m
- Toegangscontrole
- Ja, Badgesysteem
Downloads







Kleinhoefstraat 11
2440 Geel
Interesse?
Contacteer onze makelaar in de buurt. Wij staan u bij van a-z en begeleiden u in de verdere opvolging van het dossier.

Vergelijkbare panden

Te huur


