
Beschrijving
Gelegen op een zeer strategsiche locatie te Deurne, bieden wij twee nieuwbouwunits aan in huur. Project Hedaan is gelegen in de Middelmolenlaan. De site geniet van een uitstekende ontsluiting richting Antwerpen, Nederland en De Kempen via de E19, E313 en A12.
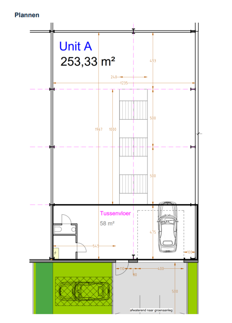
Unit 50 A omvcat ca. 253 m² opslagruimte/werkplaats, met een vrije hoogte van 6 meter.
Tevens beschikt het pand over een mezzanine van ca. 59 m², geschikt voor opslagruimte of het inwerken van een kantoorruimte.
Toegang wordt verleend door middel van een gelijkvloerse sectionaalpoort.
Er zijn twee privatieve parkeerplaatsen voorzien.
Oplevering voorzien mei 2026.
Huurprijzen exclusief btw, Onroerende Voorheffing en algemene onkosten ten laste van de huurder.
Gelieve ons te contacteren voor verdere informatie of om een bezoek ter plaatse in te plannen.
Unit 50 A omvcat ca. 253 m² opslagruimte/werkplaats, met een vrije hoogte van 6 meter.
Tevens beschikt het pand over een mezzanine van ca. 59 m², geschikt voor opslagruimte of het inwerken van een kantoorruimte.
Toegang wordt verleend door middel van een gelijkvloerse sectionaalpoort.
Er zijn twee privatieve parkeerplaatsen voorzien.
Oplevering voorzien mei 2026.
Huurprijzen exclusief btw, Onroerende Voorheffing en algemene onkosten ten laste van de huurder.
Gelieve ons te contacteren voor verdere informatie of om een bezoek ter plaatse in te plannen.
Financieel en beschikbaarheid
- Nettoprijs
- € 2.250 p/m
- Kosten
- € 100 per maand
Specificaties
- Bewoonbare opp.
- 312 m²
- Opslagruimte
- 253 m²
- Andere
- 59 m²
- Bouwjaar
- 2026
- Voorgevel
- Beton
- Perceel opp.
- 253 m²
- Binnenbelichting
- LED
- Buitenbelichting
- Ja,
- Draagkracht vloer
- 2 T/m²
- Buitenparking
- 2
- Poorten
- 1
- Vrij hoogte
- 6 m







Middelmolenlaan 50
2100 Deurne
Interesse?
Contacteer onze makelaar in de buurt. Wij staan u bij van a-z en begeleiden u in de verdere opvolging van het dossier.

Vergelijkbare panden

Te huur

Te huur

Te huur


