
Beschrijving
Gelegen op een strategisch knooppunt in het noordelijke havengebied van Antwerpen, biedt het Ceka Center een professionele kantooromgeving voor bedrijven die waarde hechten aan bereikbaarheid, visibiliteit en een kwaliteitsvolle werkomgeving.
Kantoren zijn beschikbaar vanaf 195 m² en zijn flexibel in te delen en geschikt voor verschillende types bedrijven. Dankzij grote raampartijen geniet u van veel natuurlijke lichtinval en een aangename werksfeer. De ruimtes zijn instapklaar of eenvoudig aanpasbaar aan uw specifieke noden.
Het Ceka Center geniet van een strategische locatie aan de Noorderlaan, vlak bij de Antwerpse Ring (R1) en belangrijke uitvalswegen zoals de E19 en E17. Deze ligging garandeert een optimale bereikbaarheid met de wagen, het openbaar vervoer én de fiets. Kortom, de ideale locatie voor bedrijven in de logistieke sector, de maritieme industrie of dienstverlening.
Vermelde huurprijzen zijn exclusief provisies voor algemene kosten en onroerende voorheffing.
Als u geïnteresseerd bent in het huren van een kantoorruimte in Antwerpen, aarzel dan niet om contact met ons op te nemen voor verdere informatie of om een bezoek ter plaatse in te plannen. Ons team van ervaren vastgoedspecialisten staat klaar om u te helpen bij het vinden van de perfecte ruimte voor uw bedrijf.
Financieel en beschikbaarheid
- Nettoprijs
- € 2.321 p/m
- Prijs parking binnen per jaar
- € 1.140
- Prijs parking buiten per jaar
- € 780
- Huurlasten
- € 30 per maand
Specificaties
- Lift
- Ja
- Aansluiting riolering
- Ja
- Aansluiting water
- Ja
- Keuken
- Ja
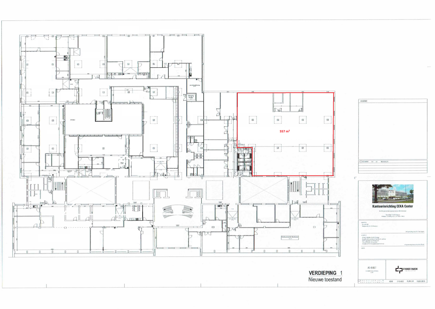
- Bewoonbare opp.
- 687 m²
- Opslagruimte
- 557 m²
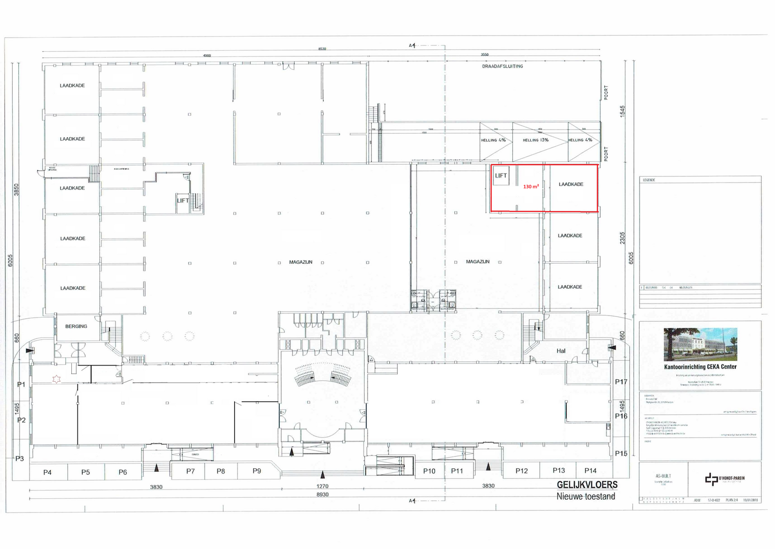
- Andere
- 130 m²
Laad- en loskade - Elektriciteit
- Ja










Noorderlaan 79
2030 Antwerpen
Interesse?
Contacteer onze makelaar in de buurt. Wij staan u bij van a-z en begeleiden u in de verdere opvolging van het dossier.


Vergelijkbare panden





